Possibile realizzazione di un quadrilocale con vista Langhe

Descrizione

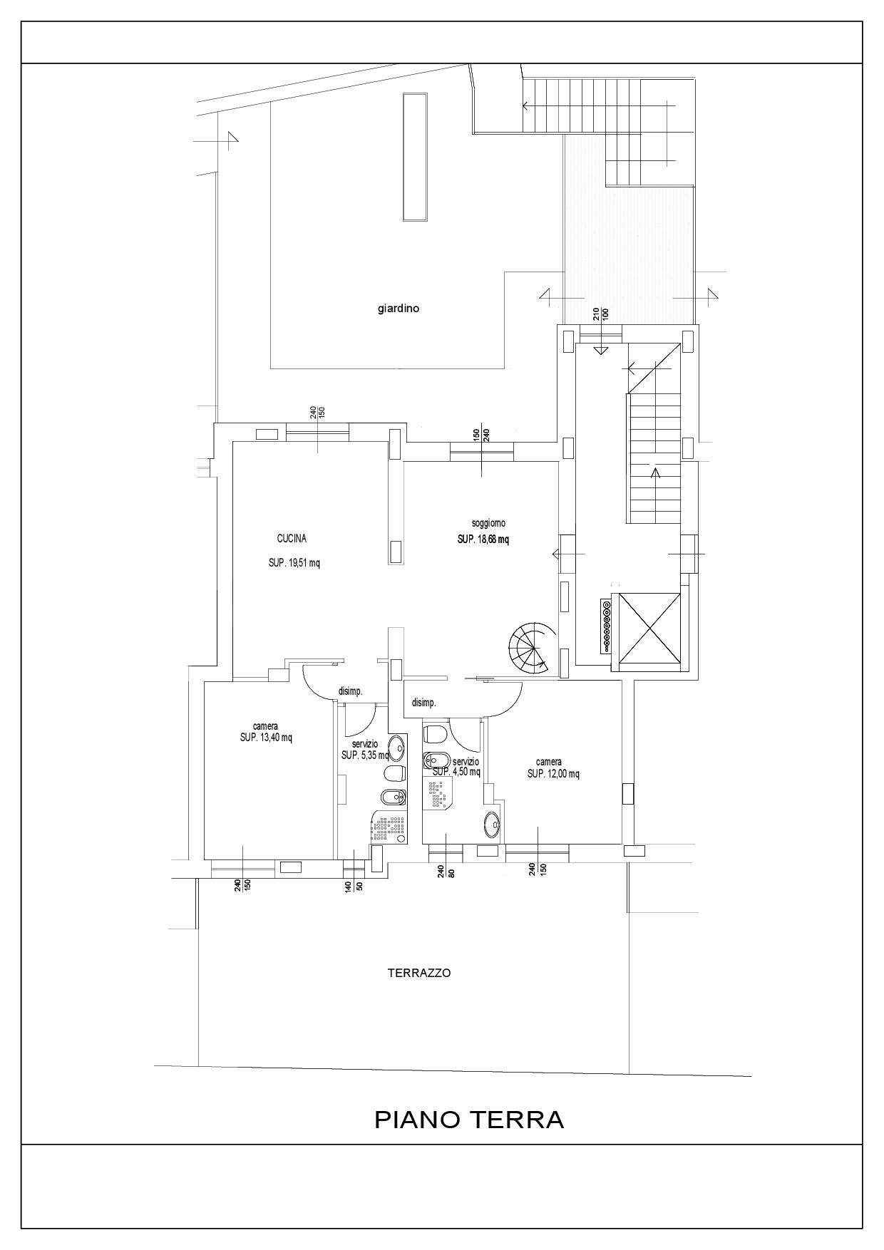
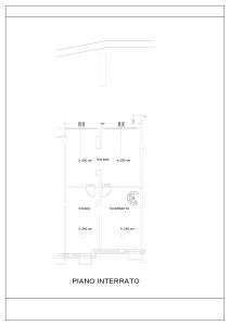
In una posizione panoramica con incantevole vista sulle Langhe, proponiamo la possibilità di realizzare un elegante appartamento caratterizzato da ambienti luminosi e spazi confortevoli. La soluzione prevede un ampio soggiorno, una cucina abitabile, due spaziose camere da letto entrambe con accesso diretto al  grande terrazzo panoramico ideale per momenti di relax all’aria aperta, due bagni moderni dotati di box doccia. A completare la proprietà, un ampio giardino privato, perfetto per godere della tranquillità e della bellezza del contesto. Al piano seminterrato trovano spazio una accogliente tavernetta, uno studio e due autorimesse. L’immobile è progettato con tecnologie moderne, tra cui impianto di riscaldamento a pavimento e ventilazione meccanica controllata, per garantire comfort e alta efficienza energetica. L’appartamento così come rappresentato nella planimetria allegata può essere realizzato con l’unione di due appartamenti bilocali.

 

VIA VIGNE PIANO INTERRATO VIA VIGNE PIANO INTERRATO
VIA VIGNE PIANO TERRA VIA VIGNE PIANO TERRA
Contratto: Vendita
Tipologia locale: Appartamento
Zona: Zona Residenziale
Metri quadri: 160
Classe energetica: Classe Energetica A3

Contattaci subito!

    info@anticacherasco.com

    +39.335.80.88.283