Quadrilocale di prossima realizzazione

Foto 360°

Descrizione

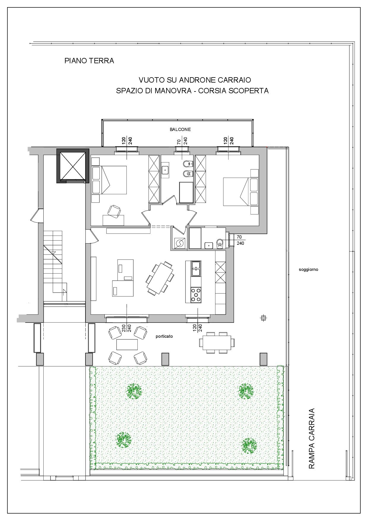
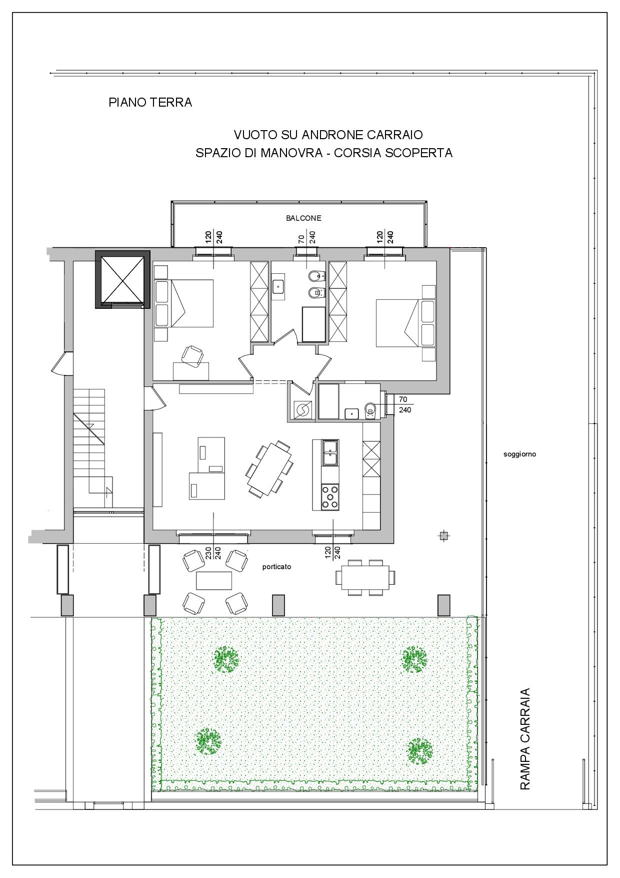
Prossima realizzazione di quadrilocale situato in una palazzina di nuova costruzione in via delle Vigne con vista a 180° sulle Langhe, composta da sole 10 unità abitative. Questa soluzione rappresenta un’opportunità unica per chi desidera vivere in un contesto residenziale tranquillo, moderno e indipendente. Caratteristiche principali: metrature e interni personalizzabili; spazi esterni privati: giardino e porticato; impianto autonomo con pompa di calore di ultima generazione; riscaldamento a pavimento radiante per un comfort uniforme; ventilazione meccanica controllata per una qualità dell’aria sempre ottimale; impianto fotovoltaico per un’abitazione sostenibile ed efficiente; tapparelle motorizzate per una gestione ideale della luce; illuminazione esterna a LED, elegante ed ecosostenibile; autorimesse spaziose al piano interrato con portone sezionale motorizzato già incluso. La palazzina è situata in una zona tranquilla e ben servita, a pochi passi da mezzi pubblici, scuole e aree verdi. L’ottima accessibilità alle principali vie di comunicazione garantisce praticità negli spostamenti quotidiani. Perché scegliere questo immobile: alta efficienza energetica; comfort abitativo e personalizzazione degli spazi; zona residenziale ideale per famiglie.  Contattaci per ulteriori informazioni o per prenotare una visita senza impegno presso il nostro ufficio. Saremo lieti di fornirti tutti i dettagli.

Contratto: Nuova Costruzione
Tipologia locale: Appartamento
Zona: Zona Residenziale
Metri quadri: 128
Classe energetica: APE in fase di elaborazione

Contattaci subito!

    info@anticacherasco.com

    +39.335.80.88.283